Myśląc nad tym, jak najlepiej podejść do pomiaru metrażu poddasza, doszedłem do wniosku, że warto wziąć pod uwagę kilka kluczowych kroków. Po pierwsze, zawsze zaczynam od solidnego planu. Wykonuję szybki rekonesans, aby upewnić się, że mam dostęp do wszystkich zakamarków. Zadbane miejsce pracy to absolutna podstawa, ponieważ nie chcę wpaść w pajęczyny ani strącić żadnych elementów konstrukcyjnych. Gdy wszystko już ogarnę, szykuję narzędzia: miarkę, notes, ołówek oraz kalkulator, aby nic mi nie umknęło.
- Przygotuj odpowiednie narzędzia: miarkę, notes, ołówek, kalkulator i drabinę.
- Stwórz szkic poddasza, zaznaczając skosy, wnęki i przeszkody.
- Mierz długości i szerokości każdego pomieszczenia, uwzględniając wysokość dachu powyżej 1,9 m.
- Odejmij powierzchnię kominów, okien dachowych i innych przeszkód od całości pomiarów.
- Oblicz zapotrzebowanie na materiał izolacyjny, mnożąc uzyskaną powierzchnię przez współczynnik zapasu (5-10%).
- Pamiętaj o normach budowlanych dotyczących wysokości pomieszczeń użytkowych.
- Wykonaj starannie pomiary, aby uniknąć nieprzyjemnych niespodzianek przy zakupie materiałów izolacyjnych.
- Rozważ skorzystanie z technologii, takich jak aplikacje do pomiarów, dla lepszej dokładności.
- Dokładne pomiary i analizy pomogą zaoszczędzić czas i pieniądze, zapewniając komfort cieplny.
Podstawą sukcesu jest odpowiednie przygotowanie narzędzi i szkicu
Gdy już mam przygotowane wszystkie potrzebne rzeczy, przystępuję do pomiarów. Zaczynam od szkicowania poddasza, co pozwala mi zyskać obraz całej przestrzeni. Zaznaczam wszelkie skosy, wnęki i przeszkody, ponieważ każdy detal jest na wagę złota. Następnie mierzę długości i szerokości każdej sekcji, dokładnie zwracając uwagę na miejsca, w których wysokość dachu spada poniżej 1,9 metra, ponieważ te części nie wliczają się do powierzchni użytkowej. Mierzenie długości i wysokości skosów w kilku punktach daje mi pełniejszy obraz tego, co będę musiał ocieplić.
Nie zapominam o uwzględnieniu skosów oraz innych elementów
Podczas pomiarów kluczowa jest precyzja—wielokrotnie zdarzyło mi się zapomnieć o kominach czy oknach dachowych. W takich sytuacjach szybko kończyło się to nadmiarem materiału i frustracją. Z tego powodu zawsze odejmuję powierzchnię tych przeszkód od całości. Będąc przy tym, warto mieć na uwadze, że według praktyków na każdy metr kwadratowy podłogi przypada średnio 1,3-1,4 m² powierzchni dachu do ocieplenia. To prosta zasada, która ułatwia mi orientację w obliczeniach.
Na koniec, gdy mam już wszystkie pomiary, nadszedł czas na obliczenia. Uzyskaną powierzchnię pomnóżę przez współczynnik zapasu, dodając 5-10% na wszelki wypadek. Dokładność we wszystkich krokach odgrywa kluczową rolę, ponieważ nie tylko oszczędzam pieniądze, ale także dbam o komfort cieplny w moim przyszłym poddaszu. Dzięki starannym pomiarom mam pewność, że poddasze zostanie dobrze ocieplone, a ja uniknę niepotrzebnych kosztów.
Jak obliczyć metraż poddasza do ocieplenia? Praktyczne wskazówki
Obliczanie metrażu poddasza do ocieplenia stanowi kluczowy etap, który umożliwia odpowiednie dobranie materiałów izolacyjnych oraz zaplanowanie budżetu. W dalszej części przedstawiamy praktyczne kroki, które ułatwią precyzyjne określenie powierzchni, na której przeprowadzisz ocieplenie.
- Przygotowanie narzędzi i szkicu
Na początek przygotuj odpowiednie narzędzia, w tym miarkę taśmową, poziomicę, kalkulator, drabinę oraz notatnik do zapisywania wyników. Następnie stwórz wstępny szkic poddasza, uwzględniając wszystkie pomieszczenia, skosy oraz przeszkody. W trakcie rysowania notuj na bieżąco wymiary, co znacznie ułatwi późniejsze obliczenia.
- Pomiar powierzchni poziomej
Przejdź do pomiarów, mierząc długość oraz szerokość każdego pomieszczenia na poddaszu. Dla prostokątnych przestrzeni wykorzystaj wzór powierzchnia = długość × szerokość. Nie zapomnij o zmierzeniu wnęk i lukarn, które mają wpływ na całkowity metraż.
- Pomiar skosów dachowych
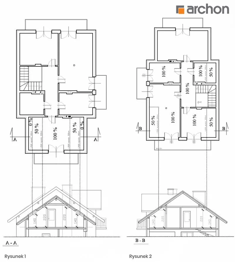
Dokładnie zmierz długość każdej połaci dachu oraz wysokość ścianki kolankowej. Traktuj skosy jako trójkąty i zastosuj wzór powierzchnia = (długość × wysokość)/2. Upewnij się, że dokonujesz pomiarów w najniższych punktach, gdzie wysokość wynosi minimum 1,9 m, ponieważ tylko w tych przestrzeniach możesz uwzględnić powierzchnię użytkową.
- Uwzględnienie wyłączeń
Od ogólnej powierzchni odejmij powierzchnię elementów konstrukcyjnych, takich jak kominy, okna dachowe oraz schody. Staraj się oszacować ich wymiary, aby uniknąć nieprzyjemnych niespodzianek przy zakupie materiałów izolacyjnych.
- Obliczenie zapotrzebowania na materiał izolacyjny
Po zsumowaniu wszystkich powierzchni odjąć wyłączenia. Następnie pomnóż wynik przez współczynnik zapasu, wynoszący około 1,05-1,10, aby zapewnić sobie wystarczającą ilość materiału. Wybierając grubość izolacji, pamiętaj, aby była zgodna z normami budowlanymi oraz zaleceniami producenta materiału; standardowa grubość dla pianki PUR wynosi minimum 21 cm, a dla wełny mineralnej 25-30 cm.
Pamiętaj, że staranność oraz dokładność w obliczeniach mają kluczowe znaczenie dla efektywności ocieplenia. Dobre pomiary pozwolą zaoszczędzić czas oraz pieniądze, a także zapewnią komfort cieplny w Twoim domu.
| Krok | Opis |
|---|---|
| 1. Przygotowanie | Wykonaj rekonesans, zadbaj o miejsce pracy oraz przygotuj narzędzia: miarkę, notes, ołówek, kalkulator. |
| 2. Szkicowanie | Stwórz szkic poddasza, zaznaczając skosy, wnęki i przeszkody, aby uzyskać pełen obraz przestrzeni. |
| 3. Mierzenie | Mierz długości i szerokości sekcji poddasza, zwracając uwagę na miejsca z wysokością dachu poniżej 1,9 m. |
| 4. Uwzględnienie przeszkód | Odejmij powierzchnię kominów i okien dachowych od całości pomiarów, aby uniknąć nadmiaru materiału. |
| 5. Obliczenia | Pomnóż uzyskaną powierzchnię przez współczynnik zapasu, dodając 5-10% na wszelki wypadek. |
Wybór odpowiednich materiałów do ocieplenia – kluczowe aspekty

Wybór odpowiednich materiałów do ocieplenia poddasza kluczowo wpływa na efektywność energetyczną budynku oraz komfort jego mieszkańców. W poniższej liście przedstawimy najważniejsze aspekty, które warto wziąć pod uwagę przy wyborze materiałów izolacyjnych, a także zalecane praktyki dotyczące pomiaru oraz obliczeń potrzebnej ilości materiałów.
- Grubość warstwy izolacyjnej – Grubość warstwy ociepleniowej ma ogromne znaczenie dla efektywności izolacji termicznej. Na przykład, aby uzyskać współczynnik przenikania ciepła U na poziomie 0,18 W/(m²K) dla pianki PUR otwartokomórkowej, konieczne jest zastosowanie minimum 21 cm grubości izolacji. Natomiast w przypadku pianki zamkniętokomórkowej wystarczy jedynie 12 cm. Jeśli planujesz osiągnąć wyższą izolacyjność, warto rozważyć zwiększenie grubości do 24 cm. Taki krok nie tylko poprawi komfort termiczny, ale również przyczyni się do mniejszych kosztów ogrzewania.
- Rodzaj materiału izolacyjnego – Decyzja dotycząca wyboru pomiędzy pianką PUR otwartokomórkową a zamkniętokomórkową ma duże znaczenie. Pianka otwartokomórkowa, będąc lekką oraz mając dobrą akustykę, polecana jest zwłaszcza do poddaszy drewnianych. Z drugiej strony, pianka zamkniętokomórkowa charakteryzuje się większą odpornością na uszkodzenia oraz wilgoć, przez co zdecydowanie lepiej sprawdza się w poddaszach betonowych. Wybór materiału powinien opierać się na konstrukcji budynku oraz jego funkcji.
- Dokładne pomiary powierzchni poddasza – Precyzyjne pomiary stanowią kluczowy etap w obliczeniach dotyczących odpowiedniej ilości materiału. W trakcie pomiarów uwzględnij zarówno powierzchnię poziomą, jak i skosy dachu. Zmierz wszystkie sekcje osobno, wykorzystując narzędzia takie jak miarka taśmowa, drabina, kalkulator oraz notes do zanotowania wyników. Nie zapomnij odjąć powierzchni okien, kominów czy lukarn, gdyż każda z tych przeszkód wpływa na całkowity koszt materiałów.
- Ujęcie norm i przepisów budowlanych – Podczas obliczania powierzchni niezwykle ważne jest, aby być świadomym obowiązujących norm budowlanych. Wysokość poniżej 1,9 metra nie zawsze wlicza się do powierzchni użytkowej, co może mieć wpływ na dalsze etapy budowy lub remontu. Dlatego zawsze warto sprawdzać aktualne wytyczne, aby uniknąć kosztownych błędów oraz komplikacji w przyszłości.
Narzędzia pomocne w precyzyjnym pomiarze poddasza – co warto mieć?
Planowanie ocieplenia poddasza zaczyna się od precyzyjnego pomiaru. Kluczowe jest, aby każdy szczegół miał znaczenie, ponieważ skosy, wnęki czy inne niuanse mogą skomplikować obliczenia bardziej, niż się to wydaje. Z tego powodu warto zaopatrzyć się w odpowiednie narzędzia, które znacznie ułatwią cały proces. Miarka taśmowa stanowi podstawę, ale jeśli dążysz do jeszcze większej dokładności, dobrze jest rozważyć zakup dalmierzy laserowych. Te nowoczesne urządzenia umożliwiają dokonanie pomiarów nawet w trudno dostępnych miejscach, eliminując potrzebę wspinania się na drabiny.
Ważnym elementem jest też stworzenie dobrego szkicu przestrzeni, który znacznie ułatwi późniejsze obliczenia. Rysowanie pomieszczeń, zarówno na kartce, jak i w aplikacji, to doskonały sposób na uporządkowanie wszystkich pomiarów. Dzięki temu po pierwsze łatwiej uwzględnisz wszystkie istotne elementy, takie jak skosy, kominy czy okna dachowe. Oprócz tego przygotuj również notes, w którym zapiszesz wszystkie wyniki pomiarów, aby później nie gubić się w liczbach. Szybki kalkulator przyda się, ponieważ niezależnie od precyzji pomiaru, będziesz musiał podliczyć całkowitą powierzchnię. Jak już poruszamy się w tym temacie to odkryj skuteczne sposoby na usunięcie farby chlorokauczukowej.
Miarka, dalmierz, szkicownik – podstawowe narzędzia do pomiarów poddasza

Starannie wykonane pomiary przyniosą korzyści nie tylko w postaci mniejszych wydatków na materiały, ale także zapewnią odpowiednią izolację termiczną, co w konsekwencji przyniesie oszczędności w ogrzewaniu. Nie daj się zwieść prostemu wyglądowi powierzchni – każdą zakamarki musisz uwzględnić, a błędne obliczenia mogą skutkować dodatkowymi kosztami związanymi z zakupem materiału. Dlatego jeśli czujesz, że nie poradzisz sobie samodzielnie, nie wahaj się zasięgnąć porady fachowców.
Przygotuj również zestaw norm, które dotyczą pomiarów poddasza, co zapewni Ci pewność, że przestrzegasz odpowiednich przepisów. Jeżeli temat cię interesuje, odkryj skuteczne metody na ocieplenie poddasza. Pamiętaj, że nie każde miejsce, gdzie wysokość spada poniżej ustalonego limitu, zalicza się do powierzchni użytkowej. Dlatego przystępując do pomiarów, zwróć uwagę na wytyczne, które mogą się różnić w zależności od rodzaju poddasza, z jakim masz do czynienia. Zyskasz dzięki temu nie tylko dokładne wyniki, ale także spokój, wiedząc, że Twój projekt ociepleniowy oparty jest na solidnych podstawach.
Ciekawostką jest, że w niektórych krajach istnieją różne przepisy dotyczące pomiarów poddasza, które mogą wpływać na jego wykorzystanie. Na przykład, w niektórych miejscach przestrzeń, gdzie wysokość stropu jest mniejsza niż 2 metry, nie jest uznawana za powierzchnię użytkową, co ma znaczenie przy późniejszej sprzedaży nieruchomości lub uzyskiwaniu pozwoleń budowlanych.
Najczęstsze błędy przy obliczaniu metrażu poddasza – jak ich unikać?
Obliczanie metrażu poddasza staje się nie lada wyzwaniem, szczególnie kiedy uwzględnimy skosy, wnęki oraz różnorodne elementy konstrukcyjne. Wiele osób bezwiednie popełnia podstawowe błędy, które mogą negatywnie wpłynąć na efekty ich pracy. Przede wszystkim, nieprecyzyjne pomiary często prowadzą do poważnych problemów. Niekiedy wystarczy jedynie pomylić kilka centymetrów, aby stracić kontrolę nad całym procesem. Dlatego warto mieć przy sobie miarkę, notes i kalkulator, a w przypadku bardziej skomplikowanych dachów, nawet rozważyć użycie technologii, takich jak aplikacje do pomiarów.
Ważne jest także, aby uwzględnić wszystkie powierzchnie wymagające izolacji. Często zdarza się, że koncentrujemy się tylko na podłodze, zapominając przy tym o skosach oraz wnękach. Musimy mieć na uwadze, że każda z tych powierzchni ma istotne znaczenie – nawet najmniejsze detale wpływają na końcowy wynik. Dlatego warto podejść do sprawy analitycznie, rozdzielając całe poddasze na prostsze figury geometryczne, a następnie sumując uzyskane wyniki. Ten sposób pozwala uniknąć nieporozumień.
Ważność uwzględnienia norm budowlanych
Nie możemy zapominać o normach budowlanych, które regulują, co dokładnie obejmuje powierzchnia użytkowa. W przypadku poddaszy, tylko te przestrzenie, gdzie wysokość przekracza określony próg, są brane pod uwagę. Nie każde miejsce poniżej wysokości, którą określają przepisy, można uwzględnić w metrażu. Dlatego istotne jest, by na każdym etapie pomiarów mieć te regulacje na uwadze, co pozwoli uniknąć późniejszych problemów z odbiorem wykonanych prac.
Dzięki starannym pomiarom i uwzględnieniu wszystkich istotnych aspektów, można uniknąć wielu pułapek związanych z metrażem poddasza.
Na zakończenie, warto pomyśleć o kalkulatorze online, który z pewnością ułatwi obliczenia. Gdy już upewnisz się, że wszystkie wymiary są dokładne, ten przydatny program pomoże w szybkim wykonaniu obliczeń i podsumowań. Dzięki temu, mając pod ręką wiarygodne dane, zminimalizujesz ryzyko wystąpienia typowych błędów, co pozwoli Ci cieszyć się efektywną izolacją swojego poddasza. Poświęcenie czasu na staranne pomiary oraz analizy przyniesie wymierne korzyści nie tylko w późniejszym użytkowaniu przestrzeni, ale także w oszczędnościach energii.
Staranność w obliczeniach to klucz do sukcesu. Zainwestowanie czasu w prawidłową analizę metrażu poddasza przyniesie długofalowe korzyści.
Ciekawostka: Warto wiedzieć, że w Polsce, zgodnie z przepisami, minimalna wysokość pomieszczenia, które można zaliczyć do powierzchni użytkowej, wynosi 2,20 m. Wszystkie przestrzenie, które są niższe, nie mogą być wliczane w metraż poddasza, co często zaskakuje właścicieli budynków.
Źródła:
- https://purios.com/jak-obliczyc-powierzchnie-poddasza-do-ocieplenia/
- https://wtrakcie.com.pl/jak-obliczyc-powierzchnie-poddasza-do-ocieplenia/
- https://www.extradach.pl/systemy-docieplen/welna/jak-obliczyc-ile-metrow-welny-na-poddasze/
Pytania i odpowiedzi
Jakie narzędzia są niezbędne do pomiaru metrażu poddasza?Aby prawidłowo zmierzyć metraż poddasza, potrzebne są miarka, poziomica, kalkulator, drabina oraz notes do zapisywania wyników. Po starannym przygotowaniu tych narzędzi można przejść do pomiarów i obliczeń.
Jak uwzględnić skosy i przeszkody podczas pomiaru poddasza?Podczas pomiarów należy dokładnie zaznaczyć skosy, wnęki oraz przeszkody takie jak kominy czy okna dachowe, aby uzyskać pełny obraz przestrzeni. Powierzchnie tych elementów należy następnie odjąć od całości, by uniknąć nadmiaru materiału.
Co należy wiedzieć o wysokości poddasza przy obliczaniu metrażu?Wysokość poniżej 1,9 metra nie wlicza się do powierzchni użytkowej poddasza, dlatego ważne jest, aby podczas pomiarów zwracać uwagę na te parametry. Tylko przestrzenie, gdzie wysokość przekracza ten próg, powinny być uwzględnione w obliczeniach.
Jakie błędy najczęściej popełniają ludzie przy obliczaniu metrażu poddasza?Do najczęstszych błędów należy brak dokładności w pomiarach oraz pomijanie skosów i wnęk, co wpływa na całkowity wynik. Niekiedy wystarczy pomylić kilka centymetrów, aby stracić kontrolę nad procesem.
Jak obliczyć zapotrzebowanie na materiał izolacyjny dla poddasza?Po zsumowaniu wszystkich zmierzonych powierzchni należy odjąć powierzchnię przeszkód i pomnożyć wynik przez współczynnik zapasu, który wynosi około 1,05-1,10. Na stronie https://promyk-meble.pl/jak-obliczyc-ile-m3-drewna-potrzebujesz-na-dach-o-powierzchni-300m2/ przeczytasz więcej informacji na ten temat. Takie podejście zapewnia wystarczającą ilość materiału do ocieplenia poddasza.














